При планировке студийных помещений мы неизбежно столкнёмся с некоторыми трудностями и ограничениями. Например, если пространство под будущую студию состоит из нескольких небольших комнат, то может возникнуть необходимость в том, чтобы снести некоторые стены. Но будьте внимательны! Капитальные несущие стены разрушать нельзя! Это одно из главных ограничений при планировке помещений. Даже если стены, намеченные под снос, окажутся не несущими, известная осторожность не помешает. В этом вопросе не поленитесь проконсультироваться с опытными строителями. Иногда под самим потолком приходится делать стяжку стен с помощью металлических двутавров. Особенно это актуально для зданий старой постройки. Кроме того, даже небольшая осадка потолка может привести к трещинам в стенах у Ваших соседей сверху, что чревато возникновением различных конфликтных ситуаций. В наши планы это не входит, не правда ли?
Известную осторожность нужно проявлять не только при сносе стен, но и при их установке, особенно если это тяжёлые кирпичные стены. Если их установка планируется на одном из этажей (кроме первого) многоэтажного здания, необходимо также консультироваться со строителями. Главный «камень преткновения» здесь – степень прочности несущих конструкций здания. Если же стены будут устанавливаться на первом или цокольном этаже, нужно знать степень прочности бетонной подложки. В некоторых случаях не обойтись и без устройства дополнительного фундамента.
Существуют и другие многочисленные ограничения. Что ж, проектирование студий – это всегда искусство компромиссов. Не избежать их и при планировке помещений студии. Поэтому нам в самом начале нужно определиться с нашими приоритетами: что для нас желательно, что архиважно, а чем в случае необходимости можно и поступиться. Из предыдущих абзацев уже ясно, что запрет на снос капитальных стен является архиважным. Но это только начало разговора. Поэтому сейчас мы рассмотрим, какие помещения могут быть в нашей студии, для чего они служат и для чьих нужд предназначены.
Все студийные помещения по функциональности можно разделить на три основные группы: контрольная комната (в больших комплексах их может быть несколько), помещения собственно для записи (тон-залы) и вспомогательные помещения (комнаты отдыха, машинные комнаты, кондиционерные, прихожие и др.) Вот в такой последовательности мы и рассмотрим основные требования к этим группам помещений и определим наши приоритеты.
Контрольные комнаты
В мире звукозаписи существует несколько концепций проектирования контрольных комнат. Из них наиболее распространёнными являются концепции LEDE (Live-End-Dead-End – контрольные комнаты соответственно с «живой» и «мёртвой» зонами) и NE (Non-Environment – «бессредные» контрольные комнаты). Рассмотрение этих концепций – тема отдельной статьи, и, возможно, в будущем мы так и сделаем. Сейчас я только отмечу, что лично я придерживаюсь концепции «бессредных» комнат. И дело здесь даже не в моих личных предпочтениях. Законы физики подсказывают, что сделать хорошую контрольную комнату площадью 15-25м2 по концепции LEDE практически невозможно. Да и вряд ли кто-то из читателей планирует в обозримом будущем делать контрольную комнату площадью 100-120м2. Поэтому порассуждать на эту тему может быть и интересно, но практическое применение этих рассуждений вряд ли произойдёт. Поэтому «опустимся на землю».
Контрольные комнаты предъявляют свои требования к дизайну студийных помещений. Какими бы чудесными ни были Ваши тон-залы в акустическом плане, Вы всё равно будете работать вслепую, если условия мониторинга и акустика контрольной комнаты не являются достаточно нейтральными по звучанию и привносят собственную характерную окраску. Для получения максимальной отдачи от акустических особенностей студии и музыкантов, а также чтобы по-настоящему раскрыть возможности своих микрофонов и оборудования, архиважно, чтобы Ваша контрольная комната была полноценной, не испорченной какими-то компромиссными решениями. Не удивительно, что в этом плане требования к контрольным комнатам являются намного более жёсткими, чем к остальным студийным помещениям.Каковы основные требования к «бессредным» контрольным комнатам?
Установка мониторов
В большинстве студий планировка помещений выполнена таким образом, что внутристудийное окно, связывающее контрольную комнату с тон-залами и позволяющее поддерживать визуальный контроль между звукоинженером и музыкантами, находится между основными мониторами. Тут, конечно, спорить не с чем. Визуальный контроль – это важно, а такая планировка звукоинженеру удобна тем, что ему не надо всякий раз поворачивать голову, чтобы увидеть играющих музыкантов. Так что идея расположения внутристудийного окна во фронтальной стене между мониторами является хорошей, и в этом нет ничего предосудительного.
В идеале, каждый из музыкантов хотел бы видеть контрольную комнату и вместе с тем, видеть других музыкантов. В то же время, общая компоновка студийных помещений не должна выполняться в ущерб функциональности главного студийного помещения – контрольной комнаты. Казалось бы, это – очевидно. Но испоганить можно и самую хорошую идею.Не раз и не два мне приходилось видеть, как для того, чтобы увеличить угол обзорности со стороны контрольной комнаты, внутристудийное окно делают чуть ли не во всю ширину фронтальной стены, а основные мониторы из-за этого устанавливают едва ли не под потолком. Приходилось видеть и более жуткую картину, когда основные мониторы были установлены в верхних углах комнаты, в которых сходились фронтальная и боковые стены, а также потолок. Из второй статьи нашего цикла Вы уже могли сделать вывод, что углы любого помещения являются узлами звукового давления и тем критичным местом, в котором наиболее нежелательна установка мониторов. Тем не менее, такую картину приходится периодически встречать – мало того, даже на обложках иностранных журналов, в «правильность» которых многие, к сожалению, верят даже больше, чем в здравый смысл. При этом мало кто задумывается, что мониторы, загнанные под потолок, будут совсем по-другому восприниматься нашим ухом, чем правильно установленные мониторы, которые излучают звук в горизонтальном направлении.
Что ж, подойдём к этому вопросу с другой стороны. Для кого мы делаем контрольную комнату? Для звукоинженера. А с чем работает звукоинженер? Со звуком. Так что является более важным для работы звукоинженера со звуком: правильная установка мониторов или размеры внутристудийного окна? Ведь ответ-то лежит на поверхности!
Не следует также забывать и о том, что с увеличением размеров окон возникают и иные проблемы. Чем больше размеры окон, тем больше звука они пропускают или резонируют в нежелательных частотных диапазонах. Решение этой проблемы уже сопряжено с заказом на стекольных заводах специальных толстых стёкол, т.е. с возникновением новых проблем. Стёкла, сделанные под заказ, будут намного дороже. Ведь с увеличением толщины стекла стоимость его возрастает в «катастрофической» прогрессии. Кроме того, толстые стёкла имеют большой вес и значительно увеличат нагрузку на несущие конструкции. Усиление конструкций – тоже дополнительные расходы, и т.д. Цепочку эту можно продолжать. Но есть вопрос: а нужно ли было её вообще начинать? Как тут не вспомнить об «искусстве компромиссов»?
Таким образом, определился наш приоритет №1: мониторы должны быть установлены правильно в соответствующих точках помещения. Это – архиважно. И хотя вопрос обзорности имеет большое значение, тем не менее, в контрольных комнатах существуют самые оптимальные места для установки мониторов, и правильность их установки имеет намного более важное значение. Поэтому лично я никогда не иду на компромисс в этом вопросе. Требования к мониторингу не могут быть подчинены требованиям к обзорности. Коль разговор у нас о контрольной комнате для работы со звуком, то мониторинг – первичен (по определению).
Условия мониторинга
После того, как мы выполнили и учли первое требование, касающееся установки мониторов, мы гарантировали себе на будущее наиболее точное восприятие прямого звука от них. Было бы хорошо, если бы всё так и оставалось. Но в действительности мы воспринимаем не только прямой звук от мониторов. Свою лепту (причём негативную) в окончательное восприятие звука в контрольной комнате вносят гармонические резонансы помещения, а также ранние отражения от его поверхностей. В любом случае, ни гармонические резонансы, ни ранние отражения от поверхностей помещения не способствуют точности мониторинга, и чем больше их и сильнее они будут, тем дальше мы будем удаляться от нашей цели.
Исходя из этого, вырисовываются основные задачи для достижения точности мониторного контроля. Их три:
- добиться наиболее точного прямого отклика мониторов;
- максимально сгладить и выровнять гармонические резонансы помещения;
- минимизировать количество и энергию ранних отражений от поверхностей помещения.
Таким образом, становится ясно, что одна из наших задач – это свести к минимуму количество и силу ранних отражений прямого звука мониторов от поверхностей помещения (к вопросу выравнивания резонансной характеристики помещения мы так или иначе будем обращаться во всех статьях нашего цикла). К счастью, сделать это не так уж сложно. Этого можно добиться практически только путём устройства звукопоглощающих конструкций на тех поверхностях помещения, от которых звук от мониторов может быть отражён в направлении позиции звукоинженера. Коль основные мониторы у нас будут вмонтированы заподлицо во фронтальную стену, то она вполне может быть отражающей звук. В какой-то мере отражающим будет и пол, хотя некоторые концепции предусматривают устройство в полу между мониторами и позицией звукоинженера эдакой «оркестровой ямы», заполненной звукопоглощающими конструкциями. А вот все остальные поверхности должны быть звукопоглощающими. В целом, это и соответствует концепции «бессредных» контрольных комнат: отражающими являются фронтальная стена и пол, остальные поверхности – звукопоглощающие.
Наиболее критичной в этом отношении является задняя стена контрольной комнаты, поскольку она практически под прямым углом принимает на себя всю энергию излучаемых звуковых волн от мониторной системы, а всё, что возвращается от этой стены, будет окрашивать воспринимаемый в комнате звук. Не менее критичным является и потолок, так как он расположен напротив отражающего звук пола. Критичными являются также боковые стены, особенно их отрезки от фронтальной стены до условной линии, которая, являясь параллельной фронтальной стене, пересекает позицию звукоинженера.
Нам известно, что чем больше вес, глубина и размеры поглощающих систем, тем более низкие частоты они могут поглощать. Поэтому нужно исходить из того, что задняя стена контрольной комнаты должна использоваться исключительно и только для установки звукопоглощающих конструкций. Планировать размещение дверей или окон в этой стене не следует. Это также один из наших основных приоритетов. Заметим сразу, что толщина звукопоглощающих конструкций будет занимать от полуметра и более.
Где же следует располагать входные двери и/или дополнительные окна? Если контрольная комната имеет достаточный размер в ширину, то по центру передней стены – между мониторами – можно поместить тяжёлое окно, а тяжёлые двери специальной конструкции можно расположить дальше на этой же стене – между мониторами и боковой стеной. Эти двери могут служить для сообщения со студийными помещениями, прихожими или коридорами. Если же приходится располагать двери в боковой стене контрольной комнаты, то предпочтительнее располагать их как можно ближе к задней стене, чтобы не препятствовать звукопоглощению по обе стороны от позиции микшерного пульта. Но даже в этом случае двери должны быть установлены под углом, чтобы отражать любой направленный на них звук в сторону звукопоглощающих конструкций задней стены. Все эти ухищрения преследуют одну цель: не допустить отражения звука от мониторов в сторону позиции прослушивания.
С этой целью можно провести такой маленький опыт. Расположите в предполагаемых местах установки мониторов какие-нибудь предметы. Возьмите зеркало, которое по размерам сопоставимо с площадью окна или двери, которые Вы планируете установить в боковой стене, и попросите своих коллег подержать это зеркало (отражающей поверхностью вовнутрь контрольной комнаты). Присядьте на предполагаемое место звукоинженера и посмотрите в зеркало. Если Вы видите в нём отражения наших предметов, имитирующих мониторы, то это говорит о том, что в этом месте иметь окно или дверь нежелательно. В этом случае нужно менять или позицию звукоинженера, или позицию мониторов (а значит и фронтальной стены), или позицию двери/окна, или всё вместе взятое. Если зеркало будет иметь очень большую площадь, то, как Вы понимаете, установленные в местах монтирования мониторов предметы будут видны практически с любой точки. Отсюда вывод: не надо слишком увлекаться размерами окон в боковых стенах контрольных комнат; подбирать размеры окон нужно из соображений разумной достаточности.
Появление лишь в одной из боковых стен контрольной комнаты отражающей поверхности в виде окна приведёт к некоторому «акустическому перекосу», что в нашем случае нежелательно, так как мы хотим добиться акустической симметрии контрольной комнаты. И чем больше будет окно, тем больше будет этот перекос. В какой-то мере эту ситуацию можно подправить расположением напротив окна в противоположной боковой стене входных дверей в контрольную комнату. Есть и другие способы, которые в рамках этой статьи мы рассматривать не будем.
На страницах зарубежных журналов доводилось видеть студии, в которых в контрольных комнатах между мониторами во фронтальной стене установлены раздвижные двери из толстого стекла. Эта идея тоже имеет право на жизнь. Правда, я этим способом не пользуюсь по некоторым причинам. Во-первых, установка таких дверей приводит к значительному утолщению фронтальной стены, что неприемлемо в условиях небольших помещений. Во-вторых, установка таких дверей (естественно, минимум двойных) чревата возникновением низкочастотных резонансов между ними, что может повлиять на точность мониторинга. В какой-то мере выход можно найти в применении стёкол потолще, но в какие деньги это выльется? В-третьих, такие двери в любом случае являются весьма недешёвыми, а с этим тоже невозможно не считаться.
Прочие «мелочи»
Таким образом, мы рассмотрели те основные моменты, которые нужно учитывать при планировании помещения под контрольную комнату. Неплохо было бы сразу учесть, какие помещения будут у нас по соседству с контрольной комнатой, и как они будут сообщаться.
Важно предусмотреть прямое сообщение между контрольной комнатой и тон-залом, чтобы клиент Вашей студии из тон-зала попадал сразу в контрольную комнату и наоборот. Иногда помещения планируют таким образом, что при этом клиенту нужно пройти через офис, комнату отдыха, коридор или прихожую. Такая планировка нежелательна не только тем, что увеличивается время «на хождения». В этом случае практически гарантированы – пускай даже сиюминутные – встречи с другими людьми, что мешает сосредоточиться на работе. По крайней мере, на пользу это никогда не идёт. Очень важно, чтобы во время работы между звукоинженером и музыкантом сложилась доверительная обстановка, а любое постороннее вмешательство только будет создавать этому помехи.
Если в Вашей студии планируется машинная комната (machine room), то её также необходимо размещать рядом с контрольной комнатой. Основной довод в пользу такого решения – как можно больше сократить длину кабелей и мультикоров, с помощью которых коммутируется оборудование, находящееся в контрольной комнате, с магнитофонами, интерфейсами и компьютерами, находящимися в машинной комнате.
Ещё одно пожелание – размещение контрольной комнаты поближе к выходу со студии. Если сделать наоборот, то Ваши тон-залы рискуют превратиться в «проходной двор». Но это не значит, что люди со двора или из коридора должны сразу же попадать в контрольную комнату. Между контрольной комнатой и «окружающей средой» должно быть ещё одно – пускай небольшое – промежуточное помещение. Это может быть прихожая, комната отдыха или офисное помещение. Такая планировка в будущем не раз спасёт Вас от неожиданного и нежелательного вторжения посторонних в контрольную комнату во время работы.
При проектировании студий я всегда стараюсь сделать так, чтобы по возможности сохранить окна, ведь в таких помещениях работать намного уютнее и приятнее. Мы же ведь не строим безэховую камеру! Единственный, как уже обсуждалось, неприемлемый вариант – это наличие окна в задней стене контрольной комнаты (рисунок 1). Так как концепция «бессредного» дизайна контрольных комнат предполагает максимально возможные звукопоглощающие свойства именно задней стены, то присутствие в ней такой значительной отражающей поверхности, как окно, абсолютно недопустимо. Что делать в этой ситуации? Здесь два решения: или подумать о размещении контрольной комнаты в другой части помещения, или «развернуть» контрольную комнату на 1800 или 900 в любую сторону. На крайний случай есть и третье решение – избавиться от окна, т.е. заложить его кирпичом.
При развороте на 1800 наружное окно окажется во фронтальной стене контрольной комнаты; соответственно, тон-залы будут находиться по сторонам от неё (рисунок 2). В этом случае мониторы монтируются в стену по обе стороны от окна, исполнители видят звукоинженера через внутристудийное окно в профиль, а звукоинженеру для того, чтобы увидеть музыкантов, надо будет всякий раз поворачивать голову.
При развороте контрольной комнаты на 900 (рисунок 3) наружное окно окажется в одной из её боковых стен; соответственно, тон-залы будут размещены за фронтальной стеной контрольной комнаты, что улучшает обзорность между звукоинженером и музыкантами.
Конечно же, одинаковых ситуаций не бывает, и для каждой из них существует ряд конкретных требований, но именно это делает студийный дизайн делом столь интересным и увлекательным. Вот мнение одного из самых известных в мире проектировщиков студий Филипа Ньюэлла: «У разных студийных дизайнеров – свои собственные приоритеты, которыми они стараются не жертвовать, и отношение к каждому из этих приоритетов основано как на фактологическом знании, так и на видении проблем сквозь призму собственного практического опыта. Этим, главным образом, и отличаются студийные дизайнеры от других специалистов в области акустики. Вместе с тем, опыт – дело личное, и вкусы дизайнеров разнятся, а поэтому отличаются и предлагаемые ими проекты. А это, между прочим, тоже хорошо, ибо отсутствие разнообразия непременно ведёт к монотонности и застою. Кстати, нужно иметь в виду, что и я являюсь продуктом обстоятельств, и объём моих личных знаний влияет и на то, что я пишу, и на то, что я проектирую. Здесь нет и не может быть догм и раз и навсегда принятых правил».
Трудно не согласиться.
Выводы
Можно подвести кое-какие промежуточные итоги по всему вышесказанному. Итак, при принятии решения, в каком помещении (или части большого помещения) будет размещаться контрольная комната, мы будем исходить из следующего:
- Изначально определяются места установки основных мониторов. Ось излучения мониторов должна находиться в горизонтальной плоскости. Исключается установка мониторов в углах помещения. Установка дверей, окон и проч. планируется только после того, как определены места установки мониторов.
- Задняя стена контрольной комнаты должна быть полностью покрыта звукопоглощающими конструкциями. Установка в ней дверей, окон и проч. исключается.
- Двери и особенно окна, помещаемые в боковых стенах, не должны быть большой площади, должны размещаться как можно ближе к задней стене и по возможности устанавливаться под углом или наклоном.
- Контрольная комната должна быть расположена как можно ближе к выходу со студии, а также иметь прямое сообщение с тон-залом и машинной комнатой. Перед входом в контрольную комнату желательно иметь прихожую, офисное помещение или комнату отдыха.
К вопросам создания контрольных комнат и концепций их проектирования мы обратимся в одной из следующих статей. Сейчас можно разве что заметить, что по определению они (вместе с мониторными системами) являются тем измерительным инструментом, с помощью которого Вы и будете оценивать музыкальный материал. Неточный инструмент приведёт к неточным оценкам и неправильным выводам. Поэтому технические требования к конструированию контрольной комнаты являются довольно жёсткими и первостепенными.
Помещения для записи
Естественно, в нашей студии будет контрольная комната и одна или несколько комнат, которые предназначены собственно для записи музыкантов (тон-залы). Акустические требования к этим помещениям – различны. Иногда даже диаметрально противоположны. Например, при проектировании тон-залов приветствуется несимметричная геометрия помещения и отсутствие параллельных стен. А при проектировании контрольных комнат – будь то концепция LEDE или NE – соблюдается геометрическая и акустическая симметричность их левых и правых половин. В следующих статьях мы рассмотрим как особенности проектирования различных типов помещений для звукозаписи, так и концепции и особенности проектирования контрольных комнат.
Что же касается тон-залов, то их – в отличие от контрольных комнат – можно сравнить с музыкальными инструментами. Соответственно отличаются и технические требования к ним. Практически все мы знаем, что нет такой комнаты, которая могла бы быть «всеядной» и выполнять все те функции, которые необходимы для записи всевозможного ассортимента музыкальных произведений. Единственным исключением (и то с натяжкой) может быть большая комната с переменной акустикой. Но для обустройства такой комнаты потребуется помещение с большой площадью (от 150-200 м2) и высотой потолков около 8 метров, а количество денег для обустройства такой комнаты достигает астрономических сумм. Однако даже самая лучшая комната такого рода никогда не сможет повторить звучание акустики хорошей маленькой комнаты с «живой» акустикой или, например, каменной комнаты. Поэтому нам нужно далее подумать, как сложить всё воедино и создать полноценный, удобный в работе и функционально гибкий студийный комплекс.
Предлагаю сразу же определиться: для кого мы проектируем тон-залы? Ответ простой: для музыкантов. Не для инженеров-акустиков, не для ГОСТов, а именно – для музыкантов. Ведь именно от того, насколько уютно (в широком смысле этого слова) будут чувствовать себя музыканты у Вас в студии, во многом будет зависеть и качество всей работы.
Для музыкантов очень важно, насколько привычно в студии будут звучать их инструменты. В реальной жизни они привыкли играть в условиях присутствия реверберации (в большей или меньшей степени). Поэтому в условиях переглушенного помещения их инструменты будут звучать непривычно, что будет сбивать их с толку. Особенно это касается ансамблей, состоящих из нескольких музыкантов. Большинство из Вас могли заметить, насколько бедно звучит симфонический оркестр на открытой площадке. Причина та же: отсутствие реверберации.
Создание в тон-зале таких акустических условий, в которых музыкантам будет нравиться звучание их инструментов – наш основной приоритет при проектировании.
Если Вам придётся проводить запись, при которой музыканты или группы музыкантов будут находиться в разных тон-залах, то важно также добиться и хорошего визуального контроля между музыкантами. В то же время, все они должны видеть звукоинженера в контрольной комнате.
Сколько и каких помещений для записи Вы хотите иметь в своей студии – зависит от общей площади и от тех видов работ по звукозаписи, которые планируются проводиться в студии. Опыт показывает, что «рабочими лошадками» любой студии являются тон-залы с нейтральной акустикой. Если площадь студии позволяет спроектировать в ней несколько разнохарактерных помещений, то «нейтральные» комнаты обычно являются основными и самыми большими по площади.
Помещения достаточно большой площади можно спроектировать таким образом, чтобы в них образовались зоны с различными акустическими свойствами: «мёртвая» зона, «живая» зона, зона диффузии и т.д. Но это возможно только в относительно больших помещениях. В маленьких помещениях такой «фокус» не получится, т.е. такая технология (как и многие другие) является немасштабируемой.
Часто в студиях используются и небольшие помещения (5-10м2) для записи вокала, дикторского текста, дубляжа фильмов, рекламных роликов и т.д.
Таким образом, если у Вас под помещение для записи отведена маленькая площадь (до 10-15м2), оборудуйте на ней вокальную (дикторскую) комнату. Если площадь 20-30м2 – оборудуйте «нейтральную» комнату. При площади 30-40м2 есть смысл сделать «нейтральную» и вокальную комнаты. Если площадь отведённого под запись помещения ещё больше, то можно подумать и о том, чтобы оборудовать комнату с различными акустическими зонами. Хотя лично бы я выбрал другой вариант: на «лишних» квадратных метрах можно было бы оборудовать комнату с «живой» акустикой и/или каменную комнату. Каждая из них имела бы свой «характер», а с помощью приоткрывания дверей между этими комнатами можно было бы эффективно влиять и на акустические свойства большой «нейтральной» комнаты. Вариантов тут – великое множество.
Довольно часто приходится встречаться с расхожим заблуждением, когда владельцы студии хотят сделать несколько тон-залов с приблизительно одинаковыми параметрами и тем самым неосознанно значительно сужают возможности своей студии. Отстаивая свою точку зрения, они заявляют, что тон-залы должны иметь такое-то время реверберации, которое соответствует таким-то ГОСТам. Приходится объяснять, что в студии будут записываться не ГОСТы, а музыканты. Конечно, при проектировании каждого тон-зала приходится решать одинаковые проблемы в части подавления паразитных резонансов и т.п. Но в любом случае, каждое помещение для записи – индивидуально. И плохого в этом ничего нет. Именно за счёт этого Ваша студия будет иметь свой «почерк», свою изюминку – то, что будет выгодно отличать её от других студий.
Если Вы предполагаете иметь в своей студии несколько помещений для записи, то следует подумать, как их наиболее правильно и удобно расположить. В этом случае нужно учитывать два момента: вопросы звукоизоляции и расположение наружных окон.
В своих проектах я всегда стараюсь по возможности сохранить наружные окна, через которые в студию поступает солнечный свет. Такие условия являются для музыкантов более естественными, а если из окон открываются вдохновляющие виды и пейзажи, то это создаёт в студии особенную обстановку и колорит. Естественно, возле окон мы не можем планировать создание комнат с «мёртвой» акустикой. Их нужно располагать в глубине помещения. Но окна не являются помехой к созданию «нейтральных» и каменных комнат, комнат с «живой» акустикой. Конечно, это несколько удорожает проект, но это стоит того.
Все помещения, предназначенные для записи, можно условно разделить на группы в зависимости от тех уровней звукового давления, которые будут в них формироваться. Так, в вокальной комнате вряд ли когда будут высокие уровни звукового давления, за исключением разве что тех случаев, когда возникнет необходимость прописать в ней гитарную комбисистему. От комнат с «нейтральной» акустикой можно ожидать больших уровней звукового давления, так как не исключено, что именно в них будут регулярно записываться комбисистемы и барабаны. Но самых больших уровней звукового давления следует ожидать от комнат с «живой» акустикой, так как они предназначены для записи громких инструментов и сами по себе являются очень яркими. Естественно, именно в них будут возникать наибольшие уровни звукового давления, вследствие чего возникнет необходимость в звукоизоляции. Поэтому – чтобы сэкономить на звукоизоляции между ними и контрольной комнатой – такие комнаты нужно размещать как можно дальше от контрольной комнаты. Исключение могут составлять только те случаи, когда именно в этой части помещения (противоположной контрольной комнате) через стенку находятся не терпящие шум соседи.
Так как работы по звукоизоляции являются довольно-таки дорогостоящими, то нам необходимо стремиться к тому, чтобы размещать «громкие» комнаты как можно дальше от контрольной комнаты и соседей, и как можно ближе к наружным стенам. Далее будут показаны примеры планировки студий, где все эти факторы были учтены.
Вспомогательные помещения
К вспомогательным помещениям можно отнести коридоры, прихожие, тамбуры, офисные помещения, комнаты отдыха. Но нас, естественно, больше всего будут интересовать машинные и кондиционерные комнаты.
Машинные комнаты (machine room) чаще всего оборудуются в студиях, в которых запись производится на цифровые или аналоговые магнитофоны с двухдюймовой лентой. Кроме этих магнитофонов в этих комнатах устанавливаются также мастер-магнитофоны, интерфейсы, конверторы, системные блоки компьютеров, хард-диски, источники бесперебойного питания, а также иное оборудование в виде «чёрных ящичков», которое не нужно звукоинженеру под руками постоянно. Другими словами, нужно стремиться к тому, чтобы устанавливать в этих комнатах шумящее оборудование, «в котором есть моторчик».
Наличие таких комнат выгодно по двум причинам: во-первых, изолируется шумное оборудование, что способствует тишине в контрольной комнате; во-вторых, в таких комнатах создаются благоприятные для оборудования условия (по температуре и влажности).
Если контрольные комнаты предназначены звукоинженерам, а тон-залы – музыкантам, то машинные комнаты предназначены для оборудования. Мы не будем в рамках этой статьи рассматривать установки климат-контроля, которые применяются в больших профессиональных студиях. Достаточно только сказать, что в системе кондиционирования нам необходимо предусмотреть дополнительную «ветку» и для машинной комнаты. Поддержание температурного режима в рекомендуемых рамках намного продлит срок службы Вашего оборудования.
Как уже отмечалось выше, машинные комнаты нужно располагать возле контрольных комнат. Это удобно и с точки зрения доступа к ним, и с точки зрения коммутации оборудования.
Конечно, в маленьких студиях машинные комнаты не делают, да и вряд ли там есть большие магнитофоны с двухдюймовой лентой. Но компьютеры и внешние хард-диски есть практически в любой студии. Поэтому при проектировании контрольной комнаты нужно сразу предусматривать нишу для них, а также доступ туда воздуха от кондиционера и его циркуляцию. Как правило, такую нишу можно сделать во фронтальной стене: или под основными мониторами, или сбоку от них.
В достаточно больших студиях вместо отдельных кондиционеров монтируются кондиционерные системы, которые занимают довольно много места. Поэтому зачастую есть смысл в том, чтобы под них отвести отдельную небольшую комнату с соответствующей звукоизоляцией. Размещают такую комнату по соседству с машинной комнатой единым блоком.
Примеры планировки студийных помещений
На рисунке 4 показан один из вариантов планировки помещений достаточно дорогой студии. При такой планировке у нас будет достаточно пространства, чтобы обустроить большое общецелевое помещение для звукозаписи с переменной акустикой, а также каменную комнату, небольшие комнатки с «живой» и с «мёртвой» акустикой и вокальную комнату.
На этом рисунке можно увидеть, как к контрольной комнате с одной стороны примыкает прихожая, а с другой стороны – машинная комната (machine room) и вокальная комната. Мы уже отмечали, что если вдоль контрольной комнаты должно располагаться какое-либо студийное помещение, то лучше всего, чтобы это была комната с самой «мёртвой» акустикой, поскольку уровень звукового давления, формирующегося в комнатах с «живой» акустикой, может создать кучу дополнительных проблем в плане звукоизоляции, если такие комнаты расположить рядом с контрольной комнатой. Кроме того, обычно в комнаты с «мёртвой» акустикой часто используются для записи вокальных партий, текстов диктора, озвучивания рекламных роликов. На это может уходить большое количество времени, поэтому расположение такой комнаты рядом с контрольной комнатой удобно. Такая планировка обеспечивает также свободный доступ и хорошую обзорность как со стороны вокальной комнаты, так и со стороны тон-зала, поэтому при любом виде работ вокалист не будет чувствовать себя совершенно изолированным.
На рисунке 5 показана схема планировки помещений в небольшой студии, площадь которой около 90 м2. Общей площади было недостаточно для того, чтобы устроить большой тон-зал с разными акустическими зонами. Поэтому были запланированы небольшие «нейтральная» комната, каменная комната и комната с «мёртвой» акустикой. Планировка продумана так, что все музыканты видят звукоинженера, а также друг друга, т.к. каменная комната просматривается насквозь. В «нейтральной» комнате имеется большое наружное окно, через которое солнечный свет попадает также и в контрольную комнату. Вокальные партии, как правило, прописываются в «нейтральной» комнате, реже – в комнате с «мёртвой» акустикой. Эта комната также используется для записи гитарных и бас-гитарных систем, при этом гибкая коммутация позволяет гитаристу или бас-гитаристу находиться в «нейтральной» комнате, а в некоторых случаях – даже в контрольной комнате. Пять лет назад в комнате с нейтральной акустикой записывался музыкальный коллектив из 15-ти человек, и они остались довольны работой и результатами.
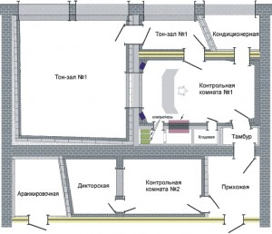
На рисунках 6 и 7 показаны варианты планировки студийных комплексов, состоящих из двух контрольных комнат. На рисунке 6 показана очень привлекательная схема расположения студийных помещений, но чтобы построить столь гибкий вариант студии, нужно выложить немало денег. При такой планировке контрольная комната №1 является основной контрольной комнатой во время записи. Контрольную комнату №2 не предполагалось использовать для серьёзной работы по сведению записей, но она должна была быть достаточно нейтральной для того, чтобы из неё могла получиться хорошая монтажная комната, и к тому же она должна была функционировать как контрольная комната для дубляжа телепередач. К контрольной комнате №2 примыкает студийное помещение №2, которое очень невелико и может за раз вместить только одного музыканта или трио бэк-вокалистов. Кроме этого, эта комната должна была ещё служить и в качестве третьего студийного помещения для контрольной комнаты №1. Проблема же состояла в том, что с точки зрения контрольной комнаты №2 было бы лучше, если бы студийная комната №2 была «мёртвой». Но рядом с контрольной комнатой №1 уже была такая комната, и дублировать её было бы неразумно. Поэтому студийная комната №2 была сделана двунаправленной, когда она могла быть относительно «мёртвой» при использовании совместно с контрольной комнатой №2, и вместе с тем относительно «живой» при использовании в совокупности со студийным помещением №1. Предполагалось, что когда эта комната будет использоваться в качестве дополнения к студийному помещению №1, музыканты будут обращены к контрольной комнате №1, а когда эта комната будет «работать» в совокупности с контрольной комнатой №2, музыканты могут смотреть в противоположном направлении, не теряя зрительного контакта с контрольной комнатой № 2. Основная же задача при этом состоит в том, чтобы сделать эту малую комнату достаточно звонкой и вместе с тем без «коробчатого» призвука, который обычно сопутствует дизайну такого рода.
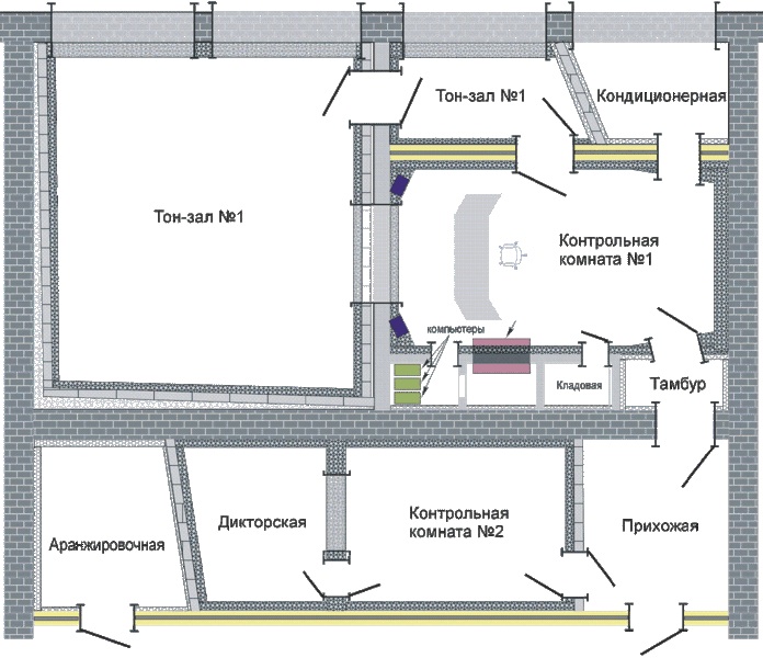
На рисунке 7 показан один из вариантов планировки студийного комплекса, общая площадь которого составляет около 120м2. В этой студии контрольная комната №2 преимущественно используется как монтажная, а также для производства рекламных роликов, для чего из соображений удобства возле неё размещена дикторская кабина. В этой контрольной комнате предусмотрены только мониторы ближнего поля. Подавляющее большинство времени обе контрольные комнаты с примыкающими помещениями работают как две независимых студии. Однако в случае необходимости они могут привлекать ресурсы друг друга, используя гибкую коммутацию, компьютерную и MIDI «сетку» и переговорное устройство. Возле контрольной комнаты №1 расположен большой тон-зал с нейтральной акустикой. В обоих (большом и малом) тон-залах сохранены большие окна с видом на улицу. Небольшая высота потолков этого комплекса – всего-то около трёх метров – не позволяла использовать «в полный рост» потолочные низкочастотные ловушки. Поэтому контрольная комната №1 расположена так, чтобы основные мониторы излучали звук вдоль неё. Потолочные ловушки размещены в промежутке между фронтальной стеной и позицией звукоинженера. Естественно, задняя стена сделана максимально звукопоглощающей; этому способствует и большой мягкий диван, установленный возле неё. Машинной комнаты в данной студии нет, но предусмотрена изолированная и вентилируемая ниша для компьютеров и хард-дисков. В соседней с ней нише расположены приборы, которые не нужны звукоинженеру под рукой постоянно: конверторы, MIDI-интерфейсы, магнитофоны и пр. Для кондиционеров выделено отдельное небольшое изолированное помещение справа от контрольной комнаты; оно же используется и как подсобное помещения для проведения мелких ремонтных и регламентных работ и т.д.
Примеров планировки студийных помещений можно привести ещё множество; среди вари-антов планировки могут быть похожие, но не будет одинаковых. Это лишний раз подтверждает, что акустический дизайн (как, кстати, и работа звукоинженера) – это область знаний, находящаяся на стыке науки и искусства.
Планировка студийных помещений – важный этап проектирования студии. Удачная планировка не только обеспечит комфорт и удобство работы музыкантов и звукоинженеров, но также сэкономит вам немало средств, которые при другом варианте планировки могли бы быть потрачены, например, на дополнительную звукоизоляцию и прочее.
Немного о звукоизоляции…
Студийные помещения предполагают определённую степень взаимной акустической изолированности. Почему я говорю: «определённую степень»? Дело всё в том, что добиться идеальной звукоизоляции между двумя помещениями – особенно в диапазоне низких частот – практически невозможно. Это подсказывают и законы физики. Поэтому лично я с большим недоверием отношусь к заявлениям некоторых «мастеров», которые якобы гарантируют звукоизоляцию на уровне 90-100 dB. Если это и достижимо, то разве что путём устройства многометровых многослойных стен. Впрочем, вот что думает по этому поводу Дэвид Хокинс (David Hawkins) из фирмы Eastlake Audio: «Обычно, когда меня кто-нибудь просит сделать звукоизоляцию между помещениями на уровне 80-85 dB, я тут же предлагаю построить эти комнаты на разных улицах».
Существует очень много способов достижения звукоизоляции, и на эту тему написано много книг. Эти способы отличаются не только подходами и идеями, но также – применяемыми материалами и, соответственно, стоимостью. В рамках этой статьи мы рассмотрим лишь самые приемлемые способы звукоизоляции для наших условий. Что я подразумеваю? Звукоизоляция «по-нашенски» должна быть эффективной, относительно недорогой, не занимающей много площади, а используемые материалы должны быть доступными. Виды звукоизоляционных дверей и окон будут рассмотрены в следующих статьях, а сегодня рассмотрим устройство звукоизоляционных стен, полов и потолка. Но – обо всём по порядку.
Перегородки между помещениями
Допустим, что у нас уже есть помещение под студию, а также проект планировки студийных помещений. Ненужные стены уже снесены. Пока мы не начали сооружать внутристудийные перегородки, необходимо в соответствии с проектом протянуть силовые кабели (электропитание), заземление, предусмотреть ввод и вывод систем вентиляции и кондиционирования и прочее (об этом говорилось в первой статье нашего цикла). В большинстве случаев «костяком» внутристудийной перегородки будет кирпичная стена. Но – не всегда. Например, не обязательно возводить именно кирпичную стену между дикторской и небольшой контрольной комнатой, так как в этом случае больших уровней звукового давления не ожидается, поэтому со звукоизоляционными задачами вполне справятся акустические оболочки обеих помещений. Хотя наличие кирпичной стены будет нелишним в любом случае.

Рисунок 8. Для того, чтобы “понтонный” (амортизационный) материал создавал наибольшую звукоизоляцию, нужно, чтобы он сжимался наполовину своего запаса по сжатию
Несколько раз мне приходилось видеть, как в небольших студиях делали кирпичную стену толщиной в полтора кирпича, чем «съедалось» несколько квадратных метров полезной площади. В то же время, можно сделать стенку в полкирпича, и при этом её эффективность окажется даже выше. Что для этого нужно сделать?
Во-первых, советую использовать не обычный цельный кирпич, а такие виды кирпича или блочков, которые внутри являются пустотелыми и состоят из несколь-ких секций. Если по мере кладки стены вы будете засыпать эти секции сухим песком, то звукоизоляционные и звукопоглощающие свойства такой стены значительно возрастут. Проведите эксперимент: постучите молотком по обычному кирпичу и по кирпичу, секции которого заполнены сухим песком. В первом случае звук будет довольно-таки звонким и ярким, а во втором случае звук будет не только глухим, но и гораздо ниже по уровню.
Во-вторых, кирпичная стена не должна иметь жёсткой связи ни с одной из поверхностей помещения. Поэтому первый слой кирпича нужно укладывать на слой пористой резины толщиной около 5 см. Плотность резины высчитывается исходя из веса будущей стены, который в свою очередь во многом зависит от её высоты. Ошибки в расчётах могут провести к тому, что резина будет сжиматься до своего предельного значения, что в свою очередь может значительно ослабить акустическую развязку между кирпичной стеной и полом. Применение более плотной резины тоже не даст необходимой акустической развязки (см. рисунок 8). После укладки первого ряда кирпича его полости засыпаются сухим песком, затем таким же образом укладывается второй ряд и т.д. Но – главное – во время кладки нужно оставлять зазоры около 3 см между торцами нашего кирпичного простенка и несущими стенами здания. Эти зазоры периодично (примерно раз на каждых пять рядов) заполняются пенополиуретаном. Это, во-первых, обеспечивает акустическую изоляцию нашего простенка от несущих конструкций здания и, во-вторых, предотвращает обвал простенка по мере кладки кирпича. Зазор, который остаётся между последним рядом кирпича и потолком помещения полностью заполняется пенополиуретаном. Изготовленный таким образом кирпичный простенок представляет собой как бы мембрану с большой площадью и с большой массой, что способствует эффективному поглощению энергии низких частот. В железобетонных зданиях, в конструкциях которых звук «гуляет» с необычайной лёгкостью, такой простенок выполняет также роль некоего демпфера между железобетонными панелями конструкции здания.
В-третьих, можно улучшить антирезонансные свойства кирпичного простенка, если применить кладку «ёлочкой» (см. рисунок 9). Кроме того, при такой кладке наш простенок будет обладать также хорошими диффузными свойствами в диапазоне средних и высших средних частот.
При кладке кирпича необходимо следить, чтобы в растворе между кирпичами не было сквозных отверстий. Расшивку между кирпичами можно не делать. Наоборот, чем хаотичнее будет выступать из кладки цементный раствор – тем лучше. Если при замешивании раствора добавить в него некоторое количество клея ПВА – это также пойдёт на пользу. Раствор станет эластичнее и не будет со временем образовываться и осыпаться цементная пыль.
При возведении стены, естественно, необходимо сразу же оставлять проёмы под двери и окна, а также отверстия для воздуховодов, прокладки мультикоров и пр. Если проект студии тщательно продуман, то вам потом не придётся пробивать кирпичные простенки ради укладки какого-либо провода или трубы. Кстати, прежде чем приступать к остальным строительным работам в студии убедитесь, хорошо ли высох ваш простенок.
Звукоизоляция стен и потолка
Итак, внутристудийные кирпичные простенки закончены. Следующий этап – звукоизоляция стен и потолка. Но вначале необходимо определить, на каких поверхностях мы должны усилить звукоизоляцию, а какие и вовсе не трогать. Дело в том, что акустическая отделка всех помещений будет состоять из двух основных условных составляющих: звукоизоляционной оболочки и акустической оболочки. А так как акустическая оболочка кроме функции выравнивания резонансной характеристики помещения обладает ещё и звукоизоляционной способностью на уровне около 30 dB, то в некоторых случаях её бывает вполне достаточно.
Привожу самый простой способ, как усилить звукоизоляцию стены. Поверхность стены оклеивается пенопластом толщиной от 4-х до 8-ми сантиметров. В качестве клеящего состава необходимо использовать только клеящую шпатлёвку, которую можно приобрести в любом магазине стройматериалов. Обычно она расфасовывается в бумажные мешки порциями по 25 килограмм. Поверх пенопласта с помощью этой же шпатлёвки наклеиваются листы гипсокартона толщиной 12 мм. Листы гипсокартона должны плотно прилегать друг к другу. В то же время между ними и несущими конструкциями здания по всему периметру стены нужно оставлять зазор около 1-3 см, т.е. избегать непосредственного контакта торцов гипсокартона со зданием. В некоторых случаях вместо пенопласта можно использовать листы минеральной ваты Rockwoоl толщиной 5 см и плотностью 80-120 кг/м3. В этом случае зазор между нижним краем гипсокартонных листов и конструкционным полом здания необходимо увеличить до 5-6 см, так как со временем гипсокартонный слой под своим весом может «сползти» на несколько сантиметров (см. рисунок 10).
Усилить звукоизоляцию – особенно в диапазоне низких частот – можно также путём наклеивания сверху ещё одного слоя гипсокартона. При этом листы должны ложиться внахлёст так, чтобы стык между листами нижнего слоя приходился на середину листа верхнего слоя (см.рисунок 10). Таким образом, мы получим нечто вроде большой мембраны толщиной 2,5 см на всю площадь стены.
Сочетание гипсокартона с минералватой (или пенопластом) создаёт комбинацию “масса – пружина”, или, если учитывать ещё и саму несущую стену, то некий “пружинящий сэндвич” (“масса/пружина/масса”). В таких случаях чрезвычайно важно соблюсти именно очерёдность расположения слоёв. Если приделать гипсокартон к стене, а сверху наклеить минералвату, то толку не будет, потому что “пружина” (минералвата) в таком случае не будет обложена слоями с большой массой, и волны, проникающие сквозь “пружину”, будут ударяться прямо в гипсокартон. А поскольку он будет жёстко привязан к несущей стене, то вибрация будет передаваться непосредственно на конструкцию здания. Когда же минеральная вата находится в середине «сэндвича», то звуковым волнам приходится расходовать энергию, «толкая» тяжелый гипсокартон, который амортизируется за счёт большой поверхности слоя упругой минеральной ваты или пенопласта. Минеральная вата поглощает большую часть вибрации и, будучи волокнистой по природе, очень плохо передаёт её к огромной по массе несущей стене. Как мы увидим позже, низкоплотные и нежёсткие материалы плохо передают энергию высокоплотным материалам. Ко всему прочему, минеральная вата и гипсокартон, «привязанные» к несущей стене, способствуют гашению резонансов самих несущих конструкций здания и тем самым уменьшают время затухания вибраций в его стенах.
Если нужно добиться более существенной звукоизоляции, то в этом случае не обойтись без возведения кирпичного простенка на некотором расстоянии от несущей стены. Как изготовить такой простенок я уже рассказывал в предыдущем разделе. Образовавшуюся полость между несущей стеной и кирпичным простенком можно заполнить отходами минеральной ваты, поролона, войлока, пенопласта и т.п. во избежание образования резонансов внутри этой полости. А вышеупомянутая звукоизоляционная конструкция из пенопласта и гипсокартона приклеивается уже к этому кирпичному простенку.
Звукоизоляция потолка делается аналогично (если потолок является железобетонным). Перед наклеиванием слоя пенопласта к потолку необходимо промыть потолок мокрой ветошью. Если на потолке присутствует известковая побелка, её нужно отскоблить с помощью шпателя. Затем потолок необходимо обработать «грунтовкой». После того, как слой пенопласта приклеен, а клеящий раствор высох, приклеиваем слой гипсокартона (см. рисунок 11). Естественно, нужно заранее заготовить распорки, которые будут поддерживать гипсокартонные листы до тех пор, пока шпатлёвка не высохнет. Как только шпатлёвка высохла (как правило, это происходит в течение суток), можно приклеивать второй слой гипсокартона. Как и в случае со стенами, гипсокартонные листы второго слоя приклеиваются внахлёст так, чтобы стыки между листами гипсокартона верхнего слоя приходились на середину листов гипсокартона нижнего слоя.
Не пытайтесь применять вместо клеящей шпатлёвки какой-либо клей, особенно БФ-88. Во-первых, это нетехнологично. Во-вторых, дорого. А главное – БФ-88 в течение получаса полностью разъест ваш пенопласт. Поэкспериментируйте, понравится.
Таковы самые простые варианты звукоизоляции стен и потолков. Более «хитрые» варианты звукоизоляции потолков мы рассмотрим в следующих статьях по мере необходимости. Может быть, кому-то такой способ звукоизоляции покажется недостаточно эффективным. Но не следует забывать, что нам предстоит ещё делать акустическую оболочку, и за счёт взаимодействия её со звукоизоляционной оболочкой эффективность последней значительно возрастёт.
Устройство пола
Итак, у нас есть уже все внутристудийные простенки, закончены работы по звукоизоляции стен и потолка, и теперь нам нужен пол. Увы, альтернативы «плавающему полу» у нас нет, ибо все остальные варианты могут свести на нет эффективность работы всей звукоизоляционной оболочки. Приемлемой звукоизоляции можно добиться только комплексным воздействием на все поверхности помещения. Рассмотрим некоторые варианты «плавающих полов».
В случае, показанном на рисунке 12, на полу уложен 8-сантиметровый слой из минеральной ваты высокой плотности поверх прочной полихлорвиниловой плёнки. Эта плёнка предохраняет от сырости, которая может быть в несущей конструкции пола здания. Ещё один слой из полихлорвиниловой плёнки укладывается уже сверху на минеральную вату, чтобы, во-первых, не дать влаге проникнуть в неё сверху при заливке поверх неё 8-10-сантиметрового слоя бетона и, во-вторых, не дать самому бетону проникнуть в верхний слой минералваты. Ведь если хоть немного бетонного раствора проникнет в минералвату, то, высохнув и застыв, он сделает её верхнюю часть более жёсткой, чем соответственно сократит толщину «пружинящего» слоя. Перед заливкой бетонного слоя укладывается арматурная сетка для придания ему большей прочности и предотвращения образования трещин под нагрузкой. После того, как бетон окончательно просохнет, он засыпается 2-3-сантиметровым слоем песка – отчасти для выравнивания, а отчасти – для акустического демпфирования «чистового» полового настила из ДСП, листов фанеры или досок. При этом деревянный настил пола выполняется в три слоя таким образом, чтобы слои перекрывали друг друга, не давая стыкам совпасть. Каждый последующий слой приклеивается к предыдущему клеем ПВА и стягивается шурупами-саморезами длиной 35 мм ещё до того, как высохнет клей. В конце концов, у нас получается монолитный сложный композитный слой, не создающий сколько-нибудь заметного резонанса.
Самое главное: весь этот композитный пол должен быть уложен внутри пространства, ограниченного изоляционными стенами, так, чтобы между полом и стенами по всему периметру был оставлен зазор шириной не менее 2 см, который впоследствии заполняется минералватой или пенополиуретаном. Для этого существуют две причины. Во-первых, любые вибрации, передающиеся непосредственно на пол – например, от бас-гитарной комбисистемы или от ударной установки – не переходят прямо на звукоизоляционные стены. Это в значительной степени облегчает задачу последних, сводя её к противостоянию шумам и звукам, распространяющимся только в воздушной среде. Во-вторых, если бы изоляционные стены были поставлены прямо на плавающий пол, амортизирующему материалу пола пришлось бы нести огромную нагрузку по периметру, где на него давил бы вес стен и потолка. В свою очередь неравномерное распределение нагрузки по поверхности пола вызывало бы сильнейшее напряжение бетонной плиты, что было бы чревато её растрескиванием. В этом случае нам пришлось бы укладывать амортизирующий материал так, чтобы увеличивать его плотность возле края бетонной плиты. Мы уже говорили о том, что амортизационный материал должен сжиматься до середины своего запаса по сжатию, потому что если его сжать слишком сильно, его виброизоляционные свойства сильно ухудшаются (см. рисунок 8). Когда же стены и пол “плавают” раздельно, то можно по отдельности подобрать под них необходимую толщину и плотность амортизационного материала.
Конструкция «плавающего» пола, которую мы рассмотрели, имеет в толщину от 24-х до 32-х сантиметров. Это значит, что на столько же сантиметров «опустится» потолок нашей студии. Кому-то устройство такого пола в студии может показаться излишеством, мол, «такой пол нужен только профессиональным студиям». Что ж, приведу тогда пример «плавающего пола» контрольной комнаты одной из профессиональных студий, которая строилась лет шесть-семь назад… на юге Африки (!). Так вот, представьте себе, что вся конструкция пола, которую мы видели на рисунке 12, лежит на монолитной бетонной плите площадью 85 м2 и толщиной 45 см (!), и при этом нигде не касается стен. Плита эта, в свою очередь, покоится на больших пружинах, которые используются в шасси электровозов. Пружины установлены на вертикальные железобетонные столбы высотой 180 см, а в пространствах между столбами установлены наклонные железобетонные панели. Думаю, на этом можно остановиться.
Тем не менее, в небольших помещениях площадью до 25м2 можно использовать «плавающий» пол несколько иной конструкции (см. рисунок 13). Изготавливается такой пол следующим образом. По всей площади помещения расстилается целлофановая плёнка – 1-2 слоя. Поверх плёнки укладывается два слоя минеральной ваты плотностью 80-120кг/м3. Если в помещении студии низкие потолки, то иногда целесообразнее обойтись одним слоем минералваты. Кстати, использование минералваты в качестве амортизационного слоя – вовсе не обязательное условие. Может использоваться пенорезина, пористая резина, резиновая крошка и пр., а в одной студии использовали даже… старые теннисные мячи. После этого укладывается ещё один слой целлофана. Затем укладывается первый слой гипсокартона, при этом его листы подрезаются так, чтобы их края отстояли от стен не менее чем на 2-3 сантиметра. После того, как слой гипсокартона уложен, расстилается гидроизол, причём плотность гидроизола должна быть не меньшей, чем 4-10 кг/м2. Значение гидроизольного слоя очень велико, так как он выполняет функции защемлённого слоя (между листами гипсокартона), способствует поглощению низких частот и обладает хорошими антирезонансными свойствами. Затем снова укладывается слой гипсокартона; при этом нужно следить, чтобы стыки между листами в первом и втором слоях не совпадали, а сами листы подрезаются так, чтобы их края отстояли от стен не менее чем на 2-3 сантиметра.
Во время всех этих работ рабочие должны передвигаться по помещению по заранее уложенным доскам во избежание проламывания гипсокартона.
После укладки второго слоя гипсокартона точно так же подрезается и укладывается слой ДСП. Затем примеряется, подрезается и укладывается ещё один слой ДСП; при этом нужно следить, чтобы стыки между листами в обоих слоях не совпадали. После «примерки» верхний слой ДСП снимается и выносится в соседнее помещение. Нижний слой ДСП обильно пропитывается клеем ПВА, после чего сверху укладываются заранее подготовленные листы ДСП верхнего слоя. Не дожидаясь полного высыхания клея, оба слоя ДСП прикручиваются друг к другу с интервалом 20-25 см шурупами-саморезами длиной 35 мм. Все работы по пропитке клеем нижнего и укладке верхнего слоя ДСП делаются как бы по зонам: начинаем с дальнего угла помещения и, по мере укладки верхнего слоя ДСП, продвигаемся к входной двери. После всего проделанного данная конструкция должна хорошо просохнуть в течение суток. Кстати, полученная конструкция (без лицевого покрытия) имеет толщину примерно 10-14 см.
Верхнее покрытие пола может быть самым различным: лакированная доска, ламинат, ковролин, линолеум, камень и т.д. Нужно проявлять осторожность при выборе ламината. Некоторые его виды имеют способность наэлектризовываться, что чревато проблемами в будущем. Покрытие из ковролина «переглушает» помещения, а сам ковролин притягивает пыль. Наиболее естественным (по звуку) является покрытие из лакированной доски, но это не всегда удобно, так как на таком полу (довольно-таки скользком) «не держатся места» барабаны, не всегда удобно играть на виолончели или контрабасе. Наиболее практичным является пол из качественного линолеума, хотя отзвук от деревянного пола нашему уху привычнее.
Выбор лицевого покрытия комнаты во многом будет зависеть и от предназначения помещения. Например, в контрольных комнатах хорошо «приживается» линолеум: он не окрашивает звучание мониторов, а покрытие из линолеума легко мыть и пылесосить, что тоже немаловажно, особенно если учесть, что именно в контрольных комнатах происходит основная масса «трудовых телодвижений» персонала и посетителей. В тон-залах – особенно в комнатах с «нейтральной» акустикой – пол лучше делать из лакированной доски. Это особенно важно, если Вы предполагаете записывать «классических» музыкантов, которые привыкли играть в залах именно с таким полом; в ряде случаев именно деревянный пол является как бы «продолжением» их инструмента. Если же Вам и понадобится покрытие из ковролина (например, для вокалиста), то в большинстве случаев будет достаточно и небольшого коврика, постеленного сверху. Кроме того, пол может быть изготовлен как из твёрдых, так и из мягких пород дерева, что также придаст свою окраску общему «звучанию» помещения. В комнатах с «живой» акустикой, а также в «каменных» комнатах пол может быть и из камня. А вот в телестудиях пол покрывают слоем пенорезины или специального композитного материала, и связано это с тем, что во время съёмок в первую очередь требуется бесшумное перемещение телевизионных камер.
Впрочем, до укладки лицевой стороны пола нам ещё далеко, так как это один из завершающих этапов строительства студии. Пока мы уложим верхний слой ДСП и остановимся.
Заключение
В этой статье мы рассмотрели два важных вопроса: планировку студийных помещений и вопросы звукоизоляции. И если от планировки помещений во многом зависит функциональность Вашей студии, то от звукоизоляции зависит не только это, но и то, насколько спокойной и безконфликтной в отношении соседей будет работа Вашей студии в будущем. Свою лепту в звукоизоляцию добавит ещё и акустическая оболочка. В итоге нужно рассчитать звукоизоляцию так, чтобы «утечка звука» со студии не превышала 30 dBА, что ненамного выше уровня фонового шума в 20-25 dBА.
Ну а наша виртуальная студия на этом этапе уже готова к акустической отделке, о чём мы и поговорим в следующих статьях.
Popularity: 100% [?]












Мечтая о своей гипотетической студии, взялся читать вашу серию статей.
Очень познавательно!
В этой части показалась неочевидной надежность наклеивания гипсокартона на минвату, особенно на потолке..
http://www.sound-consulting.com.ua/ru/?p=1666
что скажите на счет акустических кабинок?
Здравствуйте, ничего хорошего.